藤沢市大庭4期 新築1号棟 全1棟 神奈川県藤沢市大庭|5,499万円の新築一戸建て|センチュリー21富士ハウジング
| 価格 | 5,499万円 ![]() |
||||
|---|---|---|---|---|---|
| 所在地 | 神奈川県藤沢市大庭
この地域周辺の物件を見る |
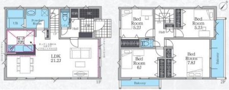
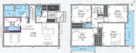
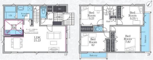
土地面積 | 166.39m² (50.33坪) | 建物面積 | 107.65m2 |
| 築年月 | 2026年2月築 | 間取り | 4LDK (LDK21.2/洋室7.8/洋室6/洋室5.2/洋室5.2) | ||
| 交通 |
小田急江ノ島線 善行 徒歩15分
|
||||
| 特徴 |
|
|---|---|
| セールスコメント | 辻堂北口店はJR東海道線「辻堂」駅北口徒歩3分、オザワビル1階にございます。 |
| 採光面 | - | 構造/階数 | 木造/地上2階建 |
|---|---|---|---|
| 建ぺい率 | 60(%) | 容積率 | 180(%) |
| 駐車場 | 有 | 現況/引渡し | 新築/相談 |
| 土地権利 | 所有権 | 私道負担面積 | あり 144m² 持分:1/6 |
| 接道状況 | 接道: 南西 公道 道路幅: 4.1m 接道: 北東 私道 道路幅: 4.5m |
用途地域 |
第一種中高層住居専用地域
|
| セットバック | - | 法令上の制限 | 宅地造成工事規制区域;準防火地域 |
| 地目 | 宅地 | 地勢 | |
| 建築確認番号 | 第25UDI1W建06808号 | 都市計画 | 市街化区域 |
| 取引態様 | 仲介 | ||
| 情報更新日 | 2026年05月01日 | 次回更新日 | 2026年05月15日 |
| 小学校区 | () |
中学校区 | () |
|---|
| 価格 | 万円 | ||
|---|---|---|---|
| 年利率 | % |
||
| ボーナス払い | 返済年数 | ||
| 頭金 | 直接入力する | 万円 | |

毎月のご返済額 |
ボーナス(×年2回) |
物件価格5,499万円 |
![]() |
![]() |
藤沢市大庭
5499万円 |
シューズインクローゼット付きで収納も充実
並列2台駐車で毎日の出入りもスムーズ
スーパー・コンビニ徒歩5分圏内で毎日の買い物も便利
小学校も徒歩4分の安心の距離