藤和江ノ島ホームズステージ2 神奈川県藤沢市片瀬海岸1丁目|5,980万円の中古マンション|分譲住宅や新築物件|センチュリー21富士ハウジング
| 価格 | 5,980万円値下がり ![]() |
||||
|---|---|---|---|---|---|
| 所在地 | 神奈川県藤沢市片瀬海岸1丁目
この地域周辺の物件を見る |
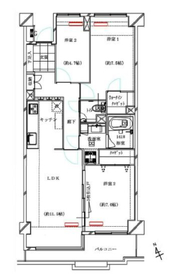
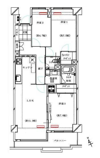
専有面積 | 80.79m2 | 築年月 | 1988年9月築 |
| 交通 |
江ノ島電鉄 江ノ島 徒歩5分
湘南モノレール 湘南江の島 徒歩5分 小田急江ノ島線 片瀬江ノ島 徒歩8分 |
管理費等 | 20,200円 | 修繕積立金 | 15,910円 | 所在階/階数 | 4階/地上5階 地下1階建 | バルコニー面積 | 7.76m² |
| 間取り | 3LDK (LDK11.5/洋室7.5/洋室7/洋室4.7) | ||||
| 特徴 |
|
|---|---|
| セールスコメント | センチュリー21富士ハウジング藤沢店は藤沢駅北口徒歩3分、提携駐車場がございます |
| 採光面 | 南西 | 取引態様 | 仲介 |
|---|---|---|---|
| 現況 | 空室 | 引渡し | 相談 |
| 総戸数 | 28戸 | 構造 | RC造 |
| テラス面積 | - | 専用庭面積 | - |
| 駐車場 | 有:18,000円/月 | 駐輪場 | 有:500円/月 |
| 建物権利 | - | 土地権利 | 所有権 |
| 用途地域 | 第一種住居地域 - - | 管理態様 | 管理形態:日勤 管理組合:あり 管理会社:三菱地所コミュニティ(株) |
| 情報更新日 | 2026年05月22日 | 次回更新日 | 2026年06月05日 |
| 小学校区 | () |
中学校区 | () |
|---|
| 価格 | 万円 | ||
|---|---|---|---|
| 年利率 | % |
||
| ボーナス払い | 返済年数 | ||
| 頭金 | 直接入力する | 万円 | |

毎月のご返済額 |
ボーナス(×年2回) |
物件価格5,980万円 |
![]() |
![]() |
藤沢市片瀬海岸1丁目
5980万円〜8180万円 |
南西 リビング・バルコニーから海が望めます(天候により) 片瀬海岸東浜まで約250m 新規リフォーム2026年2月末完了予定 お気軽にお問い合わせください