藤沢市辻堂東海岸2丁目3 新築戸建 神奈川県藤沢市辻堂東海岸2丁目|7,290万円の新築一戸建て|センチュリー21富士ハウジング
| 価格 | 7,290万円 ![]() |
||||
|---|---|---|---|---|---|
| 所在地 | 神奈川県藤沢市辻堂東海岸2丁目
この地域周辺の物件を見る |
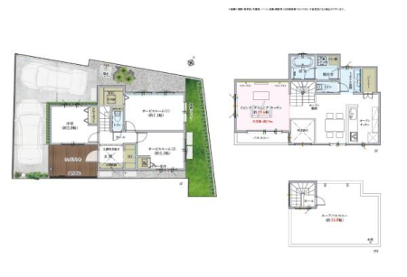
土地面積 | 114.52m² (34.64坪) | 建物面積 | 93.42m2 |
| 築年月 | 2026年6月築 | 間取り | 1SLDK (LDK19.6/洋室5/S7.1/S5.1) | ||
| 交通 |
JR東海道本線 辻堂 バス9分 辻堂東海岸 停歩8分
|
||||
| 特徴 |
|
|---|---|
| セールスコメント | センチュリー21富士ハウジング藤沢店は藤沢駅北口徒歩3分、提携駐車場がございます |
| 採光面 | - | 構造/階数 | 木造/地上2階建 |
|---|---|---|---|
| 建ぺい率 | 50(%) | 容積率 | 80(%) |
| 駐車場 | 有 | 現況/引渡し | 建築中/相談 |
| 土地権利 | 所有権 | 私道負担面積 | - |
| 接道状況 | 接道: 西 公道 道路幅: 4.5m | 用途地域 |
第一種低層住居専用地域
|
| セットバック | - | 法令上の制限 | - |
| 地目 | 宅地 | 地勢 | 平坦 |
| 建築確認番号 | 第25KAK建確03046号 | 都市計画 | 市街化区域 |
| 取引態様 | 仲介 | ||
| 情報更新日 | 2026年04月12日 | 次回更新日 | 2026年04月26日 |
| 小学校区 | () |
中学校区 | () |
|---|
| 価格 | 万円 | ||
|---|---|---|---|
| 年利率 | % |
||
| ボーナス払い | 返済年数 | ||
| 頭金 | 直接入力する | 万円 | |

毎月のご返済額 |
ボーナス(×年2回) |
物件価格7,290万円 |
![]() |
![]() |
藤沢市辻堂東海岸2丁目
7290万円 |
天井高約2.9mの開放的なリビング 14.8帖の水栓・コンセント付のルーフバルコニーや玄関前のウッドデッキなど日々の生活が豊かになるこだわりの間取です