鎌倉市腰越4丁目 戸建(未入居) 神奈川県鎌倉市腰越4丁目|4,980万円の中古一戸建て|センチュリー21富士ハウジング
| 価格 | 4,980万円 ![]() |
||||
|---|---|---|---|---|---|
| 所在地 | 神奈川県鎌倉市腰越4丁目
この地域周辺の物件を見る |
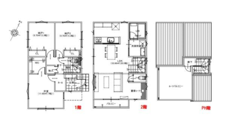
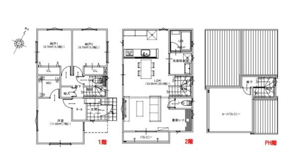
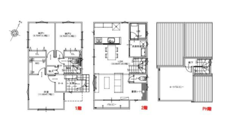
土地面積 | 85.77m² (25.94坪) | 建物面積 | 94.39m2 |
| 築年月 | 2025年1月築 | 間取り | 1SLDK (LDK20.5/洋室7/S5.3/S5.3) | ||
| 交通 |
江ノ島電鉄 腰越 徒歩6分
江ノ島電鉄 江ノ島 徒歩10分 |
||||
| 特徴 |
|
|---|---|
| セールスコメント | センチュリー21富士ハウジング藤沢店は藤沢駅北口徒歩3分、提携駐車場がございます |
| 採光面 | - | 構造/階数 | 木造/地上2階建 |
|---|---|---|---|
| 建ぺい率 | 60(%) | 容積率 | 200(%) |
| 駐車場 | 有 | 現況/引渡し | 未入居/相談 |
| 土地権利 | 所有権 | 私道負担面積 | あり 92.16m² 持分:1/7 |
| 接道状況 | 接道: 東 3.5m 私道 道路幅: 4.2m | 用途地域 |
第一種住居地域
|
| セットバック | - | 法令上の制限 | 高度地区;準防火地域 |
| 地目 | 宅地 | 地勢 | |
| 建築確認番号 | 第KBI-YKH24-10-2038号 | 都市計画 | 市街化区域 |
| 取引態様 | 仲介 | ||
| 情報更新日 | 2026年04月19日 | 次回更新日 | 2026年05月03日 |
| 小学校区 | 鎌倉市立腰越小学校 (神奈川県鎌倉市) 神奈川県鎌倉市立腰越小学校学区の他の物件を見る |
中学校区 | 腰越中学校 (神奈川県鎌倉市) 神奈川県鎌倉市立腰越中学校学区の他の物件を見る |
|---|
| 価格 | 万円 | ||
|---|---|---|---|
| 年利率 | % |
||
| ボーナス払い | 返済年数 | ||
| 頭金 | 直接入力する | 万円 | |

毎月のご返済額 |
ボーナス(×年2回) |
物件価格4,980万円 |
![]() |
![]() |
鎌倉市腰越4丁目
4980万円 |
江ノ島電鉄「腰越」駅徒歩6分「江ノ島」駅徒歩10分 海まで徒歩7分 ルーフバルコニーから江ノ島を一望できます。完成いたしましたので是非一度ご覧ください。