茅ヶ崎市浜之郷2期 新築戸建 1号棟 全2棟 神奈川県茅ヶ崎市浜之郷|4,790万円の新築一戸建て|センチュリー21富士ハウジング
| 価格 | 4,790万円値下がり ![]() |
||||
|---|---|---|---|---|---|
| 所在地 | 神奈川県茅ヶ崎市浜之郷
この地域周辺の物件を見る |
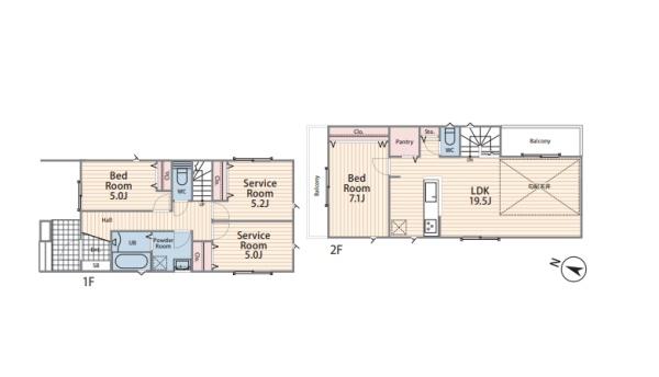
土地面積 | 98.38m² (29.75坪) | 建物面積 | 111.37m2 |
| 築年月 | 2026年2月築 | 間取り | 2SLDK (洋室5/S5.2/S5/LDK19.5/洋室7.1) | ||
| 交通 |
JR東海道本線 茅ケ崎 徒歩17分
JR相模線 茅ケ崎 徒歩17分 |
||||
| 特徴 |
|
|---|---|
| セールスコメント | センチュリー21富士ハウジング茅ヶ崎店は茅ヶ崎駅南口徒歩1分です |
| 採光面 | - | 構造/階数 | 木造/地上2階建 |
|---|---|---|---|
| 建ぺい率 | 60(%) | 容積率 | 166(%) |
| 駐車場 | 有 | 現況/引渡し | 新築/相談 |
| 土地権利 | 所有権 | 私道負担面積 | - |
| 接道状況 | 接道: 北 6.1m 公道 道路幅: 4.1m | 用途地域 |
第一種住居地域
|
| セットバック | - | 法令上の制限 | 高度地区;準防火地域 |
| 地目 | 宅地 | 地勢 | 平坦 |
| 建築確認番号 | 第2025SBC-確01755H号 | 都市計画 | 市街化区域 |
| 取引態様 | 仲介 | ||
| 情報更新日 | 2026年03月06日 | 次回更新日 | 2026年03月20日 |
| 小学校区 | 茅ヶ崎市立梅田小学校 (神奈川県茅ヶ崎市) 神奈川県茅ヶ崎市立梅田小学校学区の他の物件を見る |
中学校区 | 梅田中学校 (神奈川県茅ヶ崎市) 神奈川県茅ヶ崎市立梅田中学校学区の他の物件を見る |
|---|
| 価格 | 万円 | ||
|---|---|---|---|
| 年利率 | % |
||
| ボーナス払い | 返済年数 | ||
| 頭金 | 直接入力する | 万円 | |

毎月のご返済額 |
ボーナス(×年2回) |
物件価格4,790万円 |
![]() |
![]() |
茅ヶ崎市浜之郷
4790万円 |
子育て家族に嬉しい、小・中学校徒歩10分圏内 ご家族を近くに感じられる対面キッチン 日当たりのいい2階リビングはプライベート性も高く、落ち着いて暮らせます