藤沢市鵠沼海岸4丁目 中古戸建 神奈川県藤沢市鵠沼海岸4丁目|4,680万円の中古一戸建て|センチュリー21富士ハウジング
| 価格 | 4,680万円 ![]() |
||||
|---|---|---|---|---|---|
| 所在地 | 神奈川県藤沢市鵠沼海岸4丁目
この地域周辺の物件を見る |
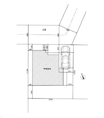
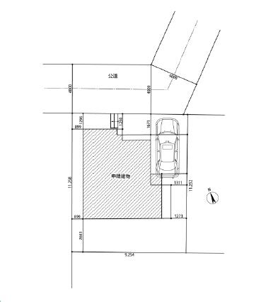
土地面積 | 105.05m² (31.77坪) | 建物面積 | 84.02m2 |
| 築年月 | 2015年2月築 | 間取り | 3LDK (LDK15.7/洋室4.7/洋室7.7/洋室5.2) | ||
| 交通 |
小田急江ノ島線 鵠沼海岸 徒歩15分
|
||||
| 特徴 |
|
|---|---|
| セールスコメント | センチュリー21富士ハウジング藤沢店は藤沢駅北口徒歩3分、提携駐車場がございます |
| 採光面 | - | 構造/階数 | 木造/地上2階建 |
|---|---|---|---|
| 建ぺい率 | 50(%) | 容積率 | 80(%) |
| 駐車場 | 有 | 現況/引渡し | 居住中/相談 |
| 土地権利 | 所有権 | 私道負担面積 | - |
| 接道状況 | 接道: 北 公道 道路幅: 4.2m | 用途地域 |
第一種低層住居専用地域
|
| セットバック | - | 法令上の制限 | 景観法 |
| 地目 | 宅地 | 地勢 | 平坦 |
| 建築確認番号 | 都市計画 | 市街化区域 | |
| 取引態様 | 仲介 | ||
| 情報更新日 | 2026年04月13日 | 次回更新日 | 2026年04月27日 |
| 小学校区 | () |
中学校区 | () |
|---|
| 価格 | 万円 | ||
|---|---|---|---|
| 年利率 | % |
||
| ボーナス払い | 返済年数 | ||
| 頭金 | 直接入力する | 万円 | |

毎月のご返済額 |
ボーナス(×年2回) |
物件価格4,680万円 |
小田急江ノ島線「鵠沼海岸」駅徒歩15分 海まで徒歩約8分 小・中学校も近く、お子様の通学も安心 閑静な住宅街 根強い人気のエリアです