茅ヶ崎市出口町 新築戸建5号棟 全6棟 神奈川県茅ヶ崎市出口町|4,880万円の新築一戸建て|センチュリー21富士ハウジング
| 価格 | 4,880万円 ![]() |
||||
|---|---|---|---|---|---|
| 所在地 | 神奈川県茅ヶ崎市出口町
この地域周辺の物件を見る |
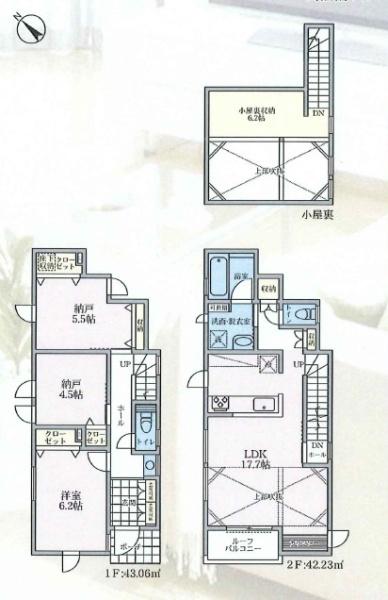
土地面積 | 108.88m² (32.93坪) | 建物面積 | 85.29m2 |
| 築年月 | 2026年6月築 | 間取り | 3LDK (-) | ||
| 交通 |
湘南新宿ライン高海 辻堂 徒歩18分
JR東海道本線 辻堂 徒歩18分 |
||||
| 特徴 |
|
|---|---|
| セールスコメント | 当店は、大型ショッピングセンター「湘南モールフィル」内1階にございます。 |
| 採光面 | - | 構造/階数 | 木造/地上2階建 |
|---|---|---|---|
| 建ぺい率 | 60(%) | 容積率 | 200(%) |
| 駐車場 | 有 | 現況/引渡し | 建築中/相談 |
| 土地権利 | 所有権 | 私道負担面積 | - |
| 接道状況 | 接道: 南 2.7m 公道 道路幅: 4.2m | 用途地域 |
第一種中高層住居専用地域
|
| セットバック | - | 法令上の制限 | - |
| 地目 | 宅地 | 地勢 | 平坦 |
| 建築確認番号 | 第2025SBC-確01913H号 | 都市計画 | 市街化区域 |
| 取引態様 | 仲介 | ||
| 情報更新日 | 2026年04月26日 | 次回更新日 | 2026年05月10日 |
| 小学校区 | 茅ヶ崎市立松浪小学校 (神奈川県茅ヶ崎市) 神奈川県茅ヶ崎市立松浪小学校学区の他の物件を見る |
中学校区 | 浜須賀中学校 (神奈川県茅ヶ崎市) 神奈川県茅ヶ崎市立浜須賀中学校学区の他の物件を見る |
|---|
| 価格 | 万円 | ||
|---|---|---|---|
| 年利率 | % |
||
| ボーナス払い | 返済年数 | ||
| 頭金 | 直接入力する | 万円 | |

毎月のご返済額 |
ボーナス(×年2回) |
物件価格4,880万円 |
![]() |
![]() |
茅ヶ崎市出口町
3380万円〜5280万円 |
【CENTURY21富士ハウジング取扱物件】穏やかな雰囲気が漂う閑静な住宅街。スーパー徒歩5分と生活のしやすい住環境です。