藤沢市本鵠沼4丁目2 新築1号棟 全3棟 神奈川県藤沢市本鵠沼4丁目|7,490万円の新築一戸建て|センチュリー21富士ハウジング
| 価格 | 7,490万円 ![]() |
||||
|---|---|---|---|---|---|
| 所在地 | 神奈川県藤沢市本鵠沼4丁目
この地域周辺の物件を見る |
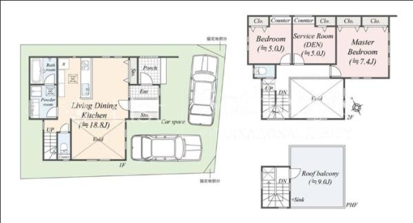
土地面積 | 115.99m² (35.08坪) | 建物面積 | 94.6m2 |
| 築年月 | 2026年5月築 | 間取り | 2SLDK (LDK18.8/洋室5/洋室7.4/S5) | ||
| 交通 |
小田急江ノ島線 本鵠沼 徒歩10分
|
||||
| 特徴 |
|
|---|---|
| セールスコメント | センチュリー21富士ハウジング藤沢店は藤沢駅北口徒歩3分、提携駐車場がございます |
| 採光面 | - | 構造/階数 | 木造/地上2階建 |
|---|---|---|---|
| 建ぺい率 | 50(%) | 容積率 | 80(%) |
| 駐車場 | 有 | 現況/引渡し | 建築中/相談 |
| 土地権利 | 所有権 | 私道負担面積 | - |
| 接道状況 | 接道: 公道 道路幅: 4m | 用途地域 |
第一種低層住居専用地域
|
| セットバック | - | 法令上の制限 | - |
| 地目 | 宅地 | 地勢 | 平坦 |
| 建築確認番号 | 第2025SBC-確01207Y号 | 都市計画 | 市街化区域 |
| 取引態様 | 仲介 | ||
| 情報更新日 | 2026年05月01日 | 次回更新日 | 2026年05月15日 |
| 小学校区 | () |
中学校区 | () |
|---|
| 価格 | 万円 | ||
|---|---|---|---|
| 年利率 | % |
||
| ボーナス払い | 返済年数 | ||
| 頭金 | 直接入力する | 万円 | |

毎月のご返済額 |
ボーナス(×年2回) |
物件価格7,490万円 |
![]() |
![]() |
藤沢市本鵠沼4丁目
6990万円〜7490万円 |
小田急江ノ島線「本鵠沼」徒歩10分、制振装置”MAMORI”、タッチレス水栓、電動シャッター、ガス衣類乾燥機用ガス栓、シーリングファン等多彩な設備のお家です。