茅ヶ崎市香川5丁目 新築戸建8号棟 全11棟 神奈川県茅ヶ崎市香川5丁目|3,880万円の新築一戸建て|センチュリー21富士ハウジング
| 価格 | 3,880万円 ![]() |
||||
|---|---|---|---|---|---|
| 所在地 | 神奈川県茅ヶ崎市香川5丁目
この地域周辺の物件を見る |
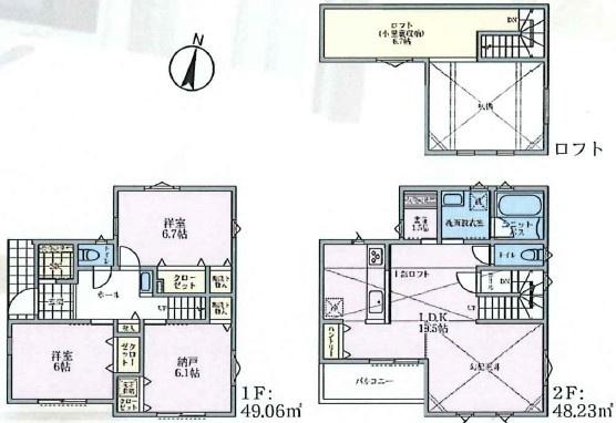
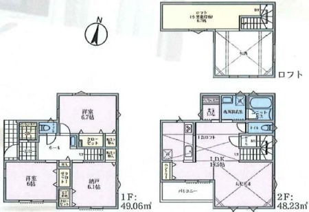
土地面積 | 104.39m² (31.57坪) | 建物面積 | 97.29m2 |
| 築年月 | 2025年9月築 | 間取り | 2SLDK (洋室6/洋室6.7/S6.1/LDK19.5) | ||
| 交通 |
JR相模線 香川 徒歩5分
|
||||
| 特徴 |
|
|---|---|
| セールスコメント | 当店は湘南モールフィル1階にございます。お気軽にお立ち寄り下さいませ。 |
| 採光面 | 南 | 構造/階数 | 木造/地上2階建 |
|---|---|---|---|
| 建ぺい率 | 60(%) | 容積率 | 180(%) |
| 駐車場 | 有 | 現況/引渡し | 新築/相談 |
| 土地権利 | 所有権 | 私道負担面積 | - |
| 接道状況 | 接道: 北 2.8m 私道 道路幅: 4.21m | 用途地域 |
第一種中高層住居専用地域
|
| セットバック | - | 法令上の制限 | 高度地区;準防火地域 |
| 地目 | 宅地 | 地勢 | 平坦 |
| 建築確認番号 | 第2024SBC-確02470Y号 | 都市計画 | 市街化区域 |
| 取引態様 | 仲介 | ||
| 情報更新日 | 2026年04月26日 | 次回更新日 | 2026年05月10日 |
| 小学校区 | 茅ヶ崎市立香川小学校 (神奈川県茅ヶ崎市) 神奈川県茅ヶ崎市立香川小学校学区の他の物件を見る |
中学校区 | 北陽中学校 (神奈川県茅ヶ崎市) 神奈川県茅ヶ崎市立北陽中学校学区の他の物件を見る |
|---|
| 価格 | 万円 | ||
|---|---|---|---|
| 年利率 | % |
||
| ボーナス払い | 返済年数 | ||
| 頭金 | 直接入力する | 万円 | |

毎月のご返済額 |
ボーナス(×年2回) |
物件価格3,880万円 |
![]() |
![]() |
茅ヶ崎市香川5丁目
3280万円〜3880万円 |
【CENTURY21富士ハウジング湘南モールフィル店取扱物件】香川駅徒歩5分、新築戸建10棟と売地1区画からなる開発分譲地です。