茅ヶ崎市浜竹3丁目 新築1号棟 全4棟 神奈川県茅ヶ崎市浜竹3丁目|7,980万円の新築一戸建て|センチュリー21富士ハウジング
| 価格 | 7,980万円 ![]() |
||||
|---|---|---|---|---|---|
| 所在地 | 神奈川県茅ヶ崎市浜竹3丁目
この地域周辺の物件を見る |
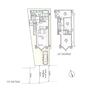
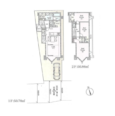
土地面積 | 100.1m² (30.28坪) | 建物面積 | 101.64m2 |
| 築年月 | 2025年12月築 | 間取り | 3LDK (LDK17/洋室9/洋室5/洋室5) | ||
| 交通 |
JR東海道本線 辻堂 徒歩9分
|
||||
| 特徴 |
|
|---|---|
| セールスコメント | 辻堂北口店はJR東海道線「辻堂」駅北口徒歩3分、オザワビル1階にございます。 |
| 採光面 | - | 構造/階数 | 木造/地上2階建 |
|---|---|---|---|
| 建ぺい率 | 60(%) | 容積率 | 150(%) |
| 駐車場 | 有 | 現況/引渡し | 新築/相談 |
| 土地権利 | 所有権 | 私道負担面積 | - |
| 接道状況 | 接道: 南 道路幅: 4.4m | 用途地域 |
第一種低層住居専用地域
|
| セットバック | - | 法令上の制限 | 準防火地域;高さ最高限度有;建物面積最低限度有 |
| 地目 | 宅地 | 地勢 | 平坦 |
| 建築確認番号 | 第KBI-SGM25-10-0709号 | 都市計画 | 市街化区域 |
| 取引態様 | 仲介 | ||
| 情報更新日 | 2026年04月18日 | 次回更新日 | 2026年05月02日 |
| 小学校区 | 茅ヶ崎市立松浪小学校 (神奈川県茅ヶ崎市) 神奈川県茅ヶ崎市立松浪小学校学区の他の物件を見る |
中学校区 | 松浪中学校 (神奈川県茅ヶ崎市) 神奈川県茅ヶ崎市立松浪中学校学区の他の物件を見る |
|---|
| 価格 | 万円 | ||
|---|---|---|---|
| 年利率 | % |
||
| ボーナス払い | 返済年数 | ||
| 頭金 | 直接入力する | 万円 | |

毎月のご返済額 |
ボーナス(×年2回) |
物件価格7,980万円 |
![]() |
![]() |
茅ヶ崎市浜竹3丁目
7980万円 |
通勤通学に便利な駅歩9分の近さ 潮風が心地よく穏やかな気候に恵まれた海が身近な街 大容量の収納スペースで住空間もスッキリ広々