ライオンズタワー片瀬江ノ島 神奈川県藤沢市片瀬海岸1丁目|4,690万円の中古マンション|分譲住宅や新築物件|センチュリー21富士ハウジング
| 価格 | 4,690万円値下がり ![]() |
||||
|---|---|---|---|---|---|
| 所在地 | 神奈川県藤沢市片瀬海岸1丁目
この地域周辺の物件を見る |
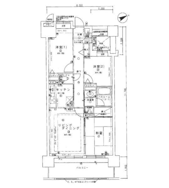
専有面積 | 65.2m2 | 築年月 | 1998年5月築 |
| 交通 |
小田急江ノ島線 片瀬江ノ島 徒歩6分
江ノ島電鉄 江ノ島 徒歩3分 湘南モノレール 湘南江の島 徒歩3分 |
管理費等 | 11,900円 | 修繕積立金 | 8,610円 | 所在階/階数 | 4階/地上15階建 | バルコニー面積 | 11.7m² |
| 間取り | 3LDK (-) | ||||
| 特徴 |
|
|---|---|
| セールスコメント | 当店は湘南モールフィル1階にございます。お気軽にお立ち寄り下さいませ。 |
| 採光面 | 東 | 取引態様 | 仲介 |
|---|---|---|---|
| 現況 | 空室 | 引渡し | 相談 |
| 総戸数 | 146戸 | 構造 | SRC造 |
| テラス面積 | - | 専用庭面積 | - |
| 駐車場 | 有:8,000円/月 | 駐輪場 | 有:100円/月 |
| 建物権利 | - | 土地権利 | 所有権 |
| 用途地域 | 商業地域 - - | 管理態様 | 管理形態:日勤 管理組合:あり 管理会社:大京アステージ |
| 情報更新日 | 2026年05月29日 | 次回更新日 | 2026年06月12日 |
| 小学校区 | () |
中学校区 | () |
|---|
| 価格 | 万円 | ||
|---|---|---|---|
| 年利率 | % |
||
| ボーナス払い | 返済年数 | ||
| 頭金 | 直接入力する | 万円 | |

毎月のご返済額 |
ボーナス(×年2回) |
物件価格4,690万円 |
![]() |
![]() |
藤沢市片瀬海岸1丁目
4690万円〜5498万円 |
【CENTURY21富士ハウジング取扱物件】「江ノ島」駅徒歩3分「片瀬江ノ島」駅徒歩6分。各戸トランクルーム付、共用の屋外シャワー室もあります。