神奈川県 鎌倉市梶原 シャワー |藤沢の不動産のことならセンチュリー21富士ハウジング

  • 藤沢店

    0120-158-380

  • 湘南モールフィル店

    0120-989-655

  • 辻堂北口店

    0120-060-021

  • 茅ヶ崎店

    0467-73-9085

TOPページ
物件検索
神奈川県 鎌倉市梶原 シャワー の不動産情報一覧

神奈川県 鎌倉市梶原 シャワー の検索結果一覧

種別で絞り込む 新築一戸建て(新築一軒家) 中古一戸建て・中古住宅 中古マンション 土地・売地 投資用・収益物件
3件中1〜3件を表示
表示件数 並び順
中古マンション 神奈川県鎌倉市梶原2丁目の中古マンションの完成予想図(外観)

【CENTURY21富士ハウジング湘南モールフィル店取扱物件】自然豊かな眺望で閑静な立地です!※2026年2月リフォーム完工予定

価格 1,690万円 
所在地 神奈川県鎌倉市梶原2丁目
交通 JR東海道本線 藤沢駅 バス15分停歩2分
間取り 3LDK
専有面積 70.83u 所在階 4階/5階建
築年月 1977年9月 建物構造 マンション/RC造
36枚  
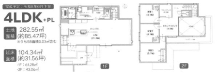
新築一戸建て 神奈川県鎌倉市梶原3丁目の新築一戸建ての間取り図

邸宅感のある吹抜けリビングの大空間、無垢材やタイルの風合い楽しむ本物志向のお家です。

価格 7,680万円 
所在地 神奈川県鎌倉市梶原3丁目
交通 湘南モノレール 湘南深沢駅 バス5分停歩8分
間取り 4LDK
建物面積 104.34u 土地面積 282.55u(85.47坪)
築年月 2026年6月 建物構造 一戸建て/木造
12枚  
中古一戸建て 神奈川県鎌倉市梶原3丁目の中古一戸建ての完成予想図(外観)

【CENTURY21富士ハウジング取扱物件】和の佇まいのこだわりの邸宅です。茶室や縁側、床の間のある7SLDK、日当りの良い南側の庭など、ぜひ一度ご覧ください。

価格 9,800万円 
所在地 神奈川県鎌倉市梶原3丁目
交通 JR横須賀線 北鎌倉駅 徒歩23分
間取り 7SLDK
建物面積 230.2u 土地面積 628.48u(190.12坪)
築年月 1974年10月 建物構造 一戸建て/木造
19枚  
表示件数 並び順


会員の無料登録はこちら

物件をさがす

  • 売り土地特集
  • 新着物件特集
  • 値下がり物件
  • 町名から探す
  • 学区から探す
  • 条件から探す
  • マンションカタログ
Zoomでオンライン来店 詳しくはこちら

売却について

売却イメージ画像

不動産のプロが誠実にご対応します。
不動産の売却に関するお悩みは弊社にご相談ください!

中古マンション×リフォーム

リフォームイメージ画像

中古物件購入のご提案だけでなく、ワンストップでリフォームのご相談・打ち合わせが可能です!

店舗紹介

藤沢店 売買営業部

藤沢店外観写真

0120-158-380

〒251-0052
神奈川県藤沢市藤沢484-24
10:00〜19:00
定休日:毎週火曜日、水曜日

店舗紹介

湘南モールフィル店

湘南モールフィル店外観写真

0120-989-655

〒251-0042
神奈川県藤沢市辻堂新町4丁目1-1
湘南モールフィル1階
10:00〜19:00
定休日:毎週火曜日、水曜日

店舗紹介

辻堂北口店

辻堂北口店外観写真

0120-060-021

〒251-0041
神奈川県藤沢市辻堂神台
1-3-39オザワビル1階
10:00〜19:00
定休日:毎週火曜日、水曜日

店舗紹介

茅ヶ崎店

茅ヶ崎店外観写真

0467-73-9085

〒253-0056
神奈川県茅ヶ崎市共恵1-2-18
ともえ桜ビル1階
10:00〜19:00
定休日:毎週火曜日、水曜日

店舗紹介

お客様へ

鎌倉市 不動産情報はセンチュリー21富士ハウジングにお任せください!センチュリー21富士ハウジングでは不動産情報を豊富にご用意しております。鎌倉市  新築戸建て・土地・マンションをお探しの方はぜひセンチュリー21富士ハウジングまでお問い合わせください。信頼あるスタッフがあなたのマイホーム探しのお手伝いをさせて頂きます。