茅ヶ崎市浜竹3丁目の分譲住宅一覧|藤沢の不動産のことならセンチュリー21富士ハウジング

  • 藤沢店

    0120-158-380

  • 湘南モールフィル店

    0120-989-655

  • 辻堂北口店

    0120-060-021

  • 茅ヶ崎店

    0467-73-9085

TOPページ >
物件検索 >
分譲住宅特集一覧 >
茅ヶ崎市浜竹3丁目の分譲住宅特集一覧
2件中1〜2件を表示
  • 1
新築一戸建て
価格 8,280万円 
所在地 茅ヶ崎市浜竹3丁目
交通 JR東海道本線 辻堂駅 徒歩9分
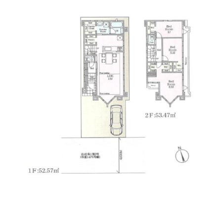
建物面積 106.04m2 土地面積 100.10m2

通勤通学に便利な駅歩9分の近さ 潮風が心地よく穏やかな気候に恵まれた海が身近な街 大容量の収納スペースで住空間もスッキリ広々

新築一戸建て
価格 8,280万円 
所在地 茅ヶ崎市浜竹3丁目
交通 JR東海道本線 辻堂駅 徒歩9分
建物面積 106.04m2 土地面積 100.10m2

閑静な住宅地で小さなお子様がいるご家族にも安心。 衣類など、豊富な収納で室内をすっきりさせるウォークインクローゼット。 海まで近く、休日が楽しみになる住環境です。

2件中1〜2件を表示
  • 1
会員の無料登録はこちら

物件をさがす

  • 売り土地特集
  • 新着物件特集
  • 値下がり物件
  • 町名から探す
  • 学区から探す
  • 条件から探す
  • マンションカタログ
Zoomでオンライン来店 詳しくはこちら

売却について

売却イメージ画像

不動産のプロが誠実にご対応します。
不動産の売却に関するお悩みは弊社にご相談ください!

中古マンション×リフォーム

リフォームイメージ画像

中古物件購入のご提案だけでなく、ワンストップでリフォームのご相談・打ち合わせが可能です!

店舗紹介

藤沢店 売買営業部

藤沢店外観写真

0120-158-380

〒251-0052
神奈川県藤沢市藤沢484-24
10:00〜19:00
定休日:毎週火曜日、水曜日

店舗紹介

湘南モールフィル店

湘南モールフィル店外観写真

0120-989-655

〒251-0042
神奈川県藤沢市辻堂新町4丁目1-1
湘南モールフィル1階
10:00〜19:00
定休日:毎週火曜日、水曜日

店舗紹介

辻堂北口店

辻堂北口店外観写真

0120-060-021

〒251-0041
神奈川県藤沢市辻堂神台
1-3-39オザワビル1階
10:00〜19:00
定休日:毎週火曜日、水曜日

店舗紹介

茅ヶ崎店

茅ヶ崎店外観写真

0467-73-9085

〒253-0056
神奈川県茅ヶ崎市共恵1-2-18
ともえ桜ビル1階
10:00〜19:00
定休日:毎週火曜日、水曜日

店舗紹介